Děkujeme za účast Hlasování v 6 x 6 design contest bylo ukončené
6 designérů ze 6 zemí – Dánska, Německa, Francie, Velké Británie, Švýcarska a České republiky – a každý z nich navrhl koupelnu o velikosti 6 m².
Nejvyšší počet hlasů získal návrh číslo 1 s názvem Serenity od dánské společnosti BJERG Architektur A/S.
Podívejte se na naši galerii soutěžních návrhů.

PŘEHLED VŠECH NÁVRHŮ






KDO STOJÍ ZA KREATIVNÍMI NÁVRHY
01 - Bjerg Arkitektur
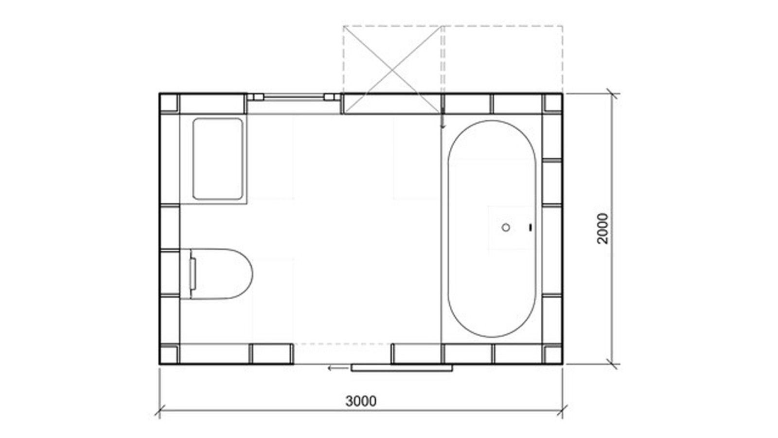
Návrh 01 – Serenity Bjerg Arkitektur, Dánsko
Název firmy
BJERG arkitektur A/S
Zaměření nebo specializace
3D modelace, skicování, design, architektura
Pro koho byla koupelna navržena?
Náš design koupelny je určen pro každého, kdo si chce každý den dopřát vyšší kvalitu života. Zelená koupelna, která dokáže do každodenního koupelnového rituálu vnést klid a vyrovnanost.
Na co byl obzvlášť kladen důraz při vybavování/zařizování?
Zvláštní pozornost jsme věnovali vnímání smysly, tj. sjednocení světla, materiálů a kvality. Rozhodli jsme se pro nekomplikované a snadno čistitelné produkty, které vypadají ušlechtile díky svému jednotnému povrchu.
Proč by lidé měli pro váš návrh hlasovat?
Náš design nabízí zážitek působící na smysly. Postará se o dobré zahájení i zakončení dne v uvolňujícím prostředí. Zelený, nadčasový design, který přináší klid a vyrovnanost do každodenního koupelnového rituálu.



02 - Nimi Atanayake
Návrh 02 - Loo of a Lifetime Nimi Attanayake, Velká Británie
Jméno
Nimi Attanayake
Název firmy
Nimtim Architects
Pozice
ředitelka
Zaměření nebo specializace
Interiérový design
Pro koho byla koupelna navržena?
Podle nás musí koupelna budoucnosti vydržet celý život (nebo dokonce více generací). S ohledem na emise oxidu uhličitého a náklady na omezeně dostupné materiály, které jsou v koupelně zapotřebí, musíme vytvářet prostory, které jsou přizpůsobivé, flexibilní, odolné a trvanlivé.
Naše potřeby a očekávání týkající se koupelny se během života značně mění. Koupelna musí být bezpečná a stimulující pro nemluvňata a malé děti, ale také odolná. V mládí a dospělosti má zajišťovat uvolnění a odpočinek, ve vyšším věku je pak prioritou bezbariérovost a uživatelská přívětivost.
Chceme vytvořit koupelnu, která splňuje všechny tyto požadavky, a přitom je promyšlená a elegantní – prostor, kde budou lidé rádi pobývat a kde je nutné bez kompromisů dostát praktickým požadavkům, zejména na vzhled a atmosféru. Koupelna je koncipována pro všechny lidi v každé fázi jejich života. Naše koupelna je dimenzována vícegeneračně, což zahrnuje například malé děti, mládež, dospělé a starší generaci.
Trend vícegeneračního bydlení je ve Velké Británii na vzestupu, a to hlavně ve městech, ve kterých vysoké ceny nemovitostí nutí mladé dospělé, aby zůstali bydlet u rodičů déle, dokud si nebudou schopni koupit nebo pronajmout vlastní byt. Faktor, který je při rozhodnutí nechat ve svém domě bydlet i prarodiče také důležitý, jsou náklady na péči o děti, protože mohou nabídnout pomocnou ruku při péči o vnoučata. Kromě toho se mohou také sami dospělí postarat o své starší rodinné příslušníky, takže není nutné stěhování do domova důchodců nebo jiného pečovatelského zařízení.
Na co byl obzvlášť kladen důraz u použitých produktů/zařízení?
Vytvořit koupelnu na celý život znamená volit materiály, které jsou odolné a trvanlivé. Z krátkodobého hlediska je nutné dbát na udržitelnost, ale také na dlouholetou životnost.
Vysoce flexibilní úložný systém vyhotovený z desky z recyklovaného plastu dobře poslouží různým věkovým skupinám. Chtěli jsme vytvořit koupelnu, která se přizpůsobí proměnlivým požadavkům různých věkových skupin.
Proč by lidé měli hlasovat pro váš návrh?
Podle nás musí koupelna budoucnosti vydržet celý život. Musí být přizpůsobivá, flexibilní a mít dlouhou životnost. Potřeby a očekávání se během života značně mění. Koupelny musí být bezpečné a odolné, ale pro malé děti i stimulující. Mladým a dospělým mají nabídnout relax a ve vyšším věku bezbariérovost. Naše koupelny tyto nároky splňují a představují prostory, kde se lidé rádi zdržují.



03 - Andrin Schweizer
Návrh 03 - Size doesn’t matter. Style does. Andrin Schweizer, Švýcarsko
Jméno
Andrin Schweizer
Název firmy
Andrin Schweizer Company
Pozice
architekt ETH/SIA
Zaměření nebo specializace
Interiérový design
Pro koho byla koupelna navržena?
Koupelna byla navržena pro lidi se zalíbením v designu, pro něž je důležité, aby se ve své koupelně cítili dobře.
Na co byl obzvlášť kladen důraz při vybavování/zařizování?
Výchozím prvkem návrhu je umyvadlo ONE. Na jednu stranu je mimořádně minimalistické a funkční, na druhou stranu však díky skříňce z ořechového dřeva vyzařuje velkou vřelost a eleganci. Přesně to jsou vlastnosti, kterými se vyznačuje i náš návrh.
Proč by lidé měli hlasovat pro váš návrh?
Návrh poukazuje na to, že i na pár metrech čtverečních je absolutně reálné vybudovat stylovou koupelnu. Harmonicky ladící materiály a rafinovaná struktura prostoru tvoří eleganci a intimitu.



04 - Iveta Lajdová
Návrh 04 - UP TO THE MOON Iveta Lajdová, Česká republika
Jméno
Ing. Arch. Iveta Lajdová
Název firmy
SLIM
Pozice
hlavní architekt | spoluzakladatel ateliéru
Zaměření nebo specializace
architektura | interiérový design
Pro koho byla koupelna navržena?
Mladý pár z velkoměsta. Ona snílek, on nohama pevně na zemi. Oba ambiciózní, nároční, pořádkumilovní, s láskou k detailům, kvalitě, čistým liniím. Rádi si užívají relaxování v komfortní vaně.
Na co byl obzvlášť kladen důraz při vybavování/zařizování?
Členění na funkční zóny | monumentalita prostoru se zapuštěnou vanou | HYGGE atmosféra | měkké oblé tvary zařizovacích předmětů | kontrast s industriální částí | autentické materiály snoubící se s kvalitou prvků Geberit | symetrie s vnesením napětí asymetrickým zrcadlem | den-noc | symbol měsíce
Proč by lidé měli hlasovat pro váš návrh?
Jsem architekt. Ale teď hlavně máma. Prvotní koncept se zrodil v noci při kojení :) S přenesením ze skic do reálné grafiky mi pomohl kolega Jiří Krátký. Důvěru do mě vložil manžel Štěpán. Těším se na návrhy ostatních účastníků a na jejich příběhy. Hlasujte pro ten, který je nejbližší Vašemu srdci.



05 - Ippolito Fleitz Group
Návrh 05 - Geberit Biophilic Bathroom Ippolito Fleitz Group, Německo
Jméno
Tilla Goldberg, diplomovaný designér
Název firmy
Ippolito Fleitz Group – Identity Architects
(Stuttgart / Berlin / Shanghai)
Pozice
ředitelka pro oblast firemních interiérů a produktového designu
Zaměření nebo specializace
tvorba firemních interiérů a korporátní architektury, navrhování nábytku, světel a materiálů.
Pro koho byla koupelna navržena?
Pro zvědavé, odvážné lidi, kteří milují ponořit se do fascinujícího prostoru.
Na co byl obzvlášť kladen důraz při vybavování/zařizování?
Koupelna je nejsmyslovější místností domu. Náš návrh je jemná, vzdušná místnost – místo naplněné atmosférickým světlem.
Použili jsme velice přírodní, haptické a kontaktní materiály. Např. dýchající hliněné stěny, kontrast drsných a reflexních povrchů. Místnost, která je plná života. Obývaná rostlinami, i když v ní nikdo není.
Proč by lidé měli hlasovat pro váš návrh?
Návrh dalece překračuje koncept funkční koupelny:
- místo, kde den začíná i končí,
- místo pro mě, ME TIME,
- malá wellness oáza,
- prostor, kde se můžu cítit dobře...
- ... a sdílet tyto momenty na selfie s celým světem.
Biofilní, udržitelný designérský koncept, který na 6 metrech čtverečních vytváří velice osobní prostor pro identitu.



06 - Eva Ivos
Návrh 06 - Better 4 you Eva Ivos, Francie
Jméno
Eva Ivos
Název firmy
Eva Ivos
Pozice
interiérová designérka / jednatelka
Specializace nebo obor
interiérový design a návrhy nábytku na míru
Pro koho byla koupelna navržena?
Projekt cílí na vícegenerační rodinu sestávající z páru a dětí (od nemluvněte po teenagera) včetně prarodičů, což odpovídá aktuálnímu trendu.
Na co byl obzvlášť kladen důraz při vybavování/zařizování?
Koupelna má být přizpůsobivá a mít dlouhou životnost, aby poskytovala kvalitu, nadčasový design, a především reagovala na proměnu uživatele v čase nezávisle na jeho věku nebo pohyblivosti. Formát a funkce plní potřeby všech, od nemluvňat po seniory.
Proč by měli lidé hlasovat pro váš návrh?
Pro jeho flexibilitu a dlouhou životnost: flexibilitu, protože dokáže plnit potřeby různých generací a rozdílných kulturních zvyklostí, a dlouhou životnost kvůli jeho nadčasovému, neutrálnímu designu, kvalitě a komfortu, jež minimalizují jeho vliv na životní prostředí.


